
A-A-55493D
AA55493-
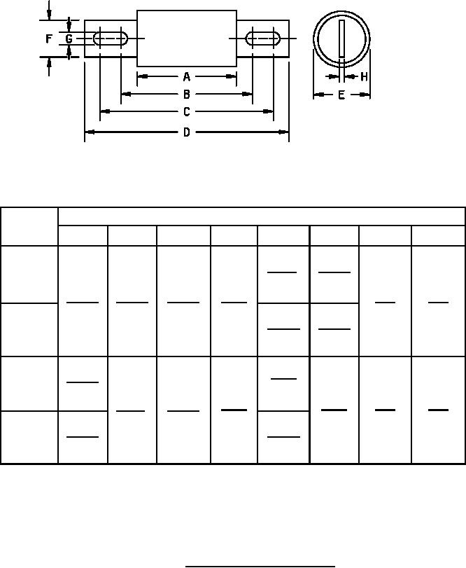
Dimensions
A
B
C
D
E
F
G
H
1.130
.880
012
(28.70)
(22.35)
through
.810
.745
014
1.911
2.194
1.626
(20.57)
(18.92)
.188
.312
(48.54)
(55.73)
2.657
(41.30)
.837
1.869
2.151
(7.92)
(4.78)
(67.49)
.880
1.130
(21.26)
(47.47)
(54.64)
015
(28.70)
(22.36)
through
.995
.745
021
(25.27)
(18.92)
1.505
1.255
38.23
022
(31.88)
1.101
through
.837
2.568
2.379
27.97
023
(21.26)
3.500
.406
.251
1.000
(60.43)
(65.23)
(88.90)
(25.40)
(10.31)
(6.38)
1.932
2.495
1.600
1.257
024
(49.07)
(63.37)
(31.93)
(40.64)
.963
1.101
(24.46)
(27.97)
Configuration B
NOTES:
1. Dimensions are in inches.
2. Unless otherwise specified, tolerance is ± .005 inch (0.13 mm).
FIGURE 2. Configuration B and dimensions.
3
For Parts Inquires call Parts Hangar, Inc (727) 493-0744
© Copyright 2015 Integrated Publishing, Inc.
A Service Disabled Veteran Owned Small Business