
MIL-DTL-24646/1C
3
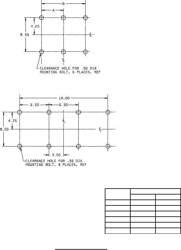
A. Symbols 600, 601, 612, 612.1 and 613
B. Symbol 614
SYMBOL
DIMENSIONS
NO
A
B
600
5.00
10.00
601
6.50
13.00
612
5.00
10.00
612.1
5.00
10.00
613
6.50
13.00
613.1
6.50
13.00
FIGURE 3. Mounting dimensions, ref.
For Parts Inquires call Parts Hangar, Inc (727) 493-0744
© Copyright 2015 Integrated Publishing, Inc.
A Service Disabled Veteran Owned Small Business