
MIL-DTL-24646/2B
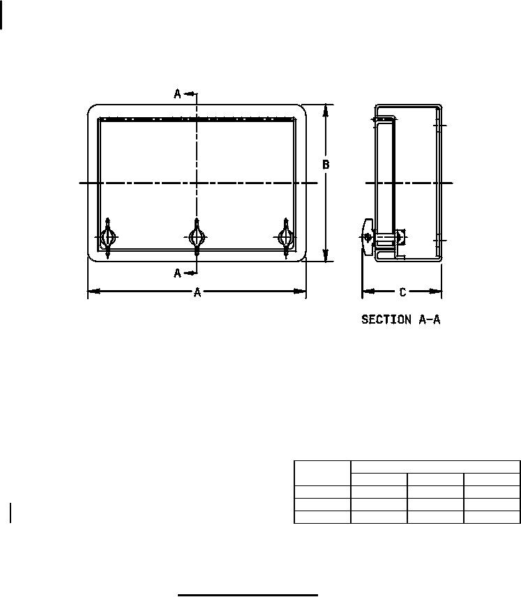
DIMENSIONS (REF)
SYMBOL
NO
A
B
C
609
14.16
10.16
4.25
610
18.16
10.16
4.25
611
22.16
10.16
4.25
FIGURE 2. Enclosure, overall dimensions. Item No. 04, 05, 06
(Symbols 609, 610, 611)
2
For Parts Inquires call Parts Hangar, Inc (727) 493-0744
© Copyright 2015 Integrated Publishing, Inc.
A Service Disabled Veteran Owned Small Business