
MIL-DTL-24646/8B
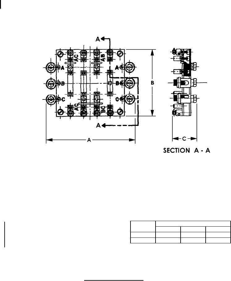
SYMBOL
DIMENSIONS (MAX)
NO
A
B
C
646.1
7.75
5.75
2.30
647.1
12.63
5.75
2.30
FIGURE 4. Fuse block assembly, typical. Item No. 05, 06
(Symbols 646.1 and 647.1)
4
For Parts Inquires call Parts Hangar, Inc (727) 493-0744
© Copyright 2015 Integrated Publishing, Inc.
A Service Disabled Veteran Owned Small Business