
INCH-POUND
MIL-DTL-5372/1B
13 May 2009
SUPERSEDING
MIL-DTL-5372/1A
13 February 2004
DETAIL SPECIFICATION SHEET
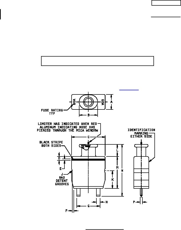
FUSE, LIMITER TYPE
ENCLOSED LINK, 1 60 AMPERE
INACTIVE FOR NEW DESIGN AFTER 17 September 2003.
NO LONGER USED EXCEPT FOR REPLACEMENT PURPOSES.
This specification is approved for use by all Departments
and Agencies of the Department of Defense.
The requirements for acquiring the product described herein
shall consist of this specification sheet and MIL-F-5372.
FIGURE 1. Outline drawing of fuse.
AMSC N/A
FSC 5920