
INCH-POUND
MIL-PRF-15160/81A
12 October 1999
SUPERSEDING
MIL-PRF-15160/81
3 March 1993
PERFORMANCE SPECIFICATION SHEET
FUSES, CARTRIDGE, INSTRUMENT, POWER AND
TELEPHONE (NONINDICATING), STYLE F81
This specification is approved for use by all Departments
and Agencies of the Department of Defense.
The requirements for acquiring the product described herein
shall consist of this specification and MIL-PRF-15160.
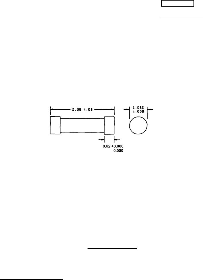
Inches
mm
0.006
0.15
.008
.20
.03
.76
.62
15.75
1.062
26.97
2.38
60.45
NOTES:
1. Dimensions are in inches.
2. Metric equivalents are given for general information only.
3. The end of the ferrule shall be flat with not greater than 0.015 inch (0.38 mm) concavity.
FIGURE 1. Style F81 characteristic B.
AMSC N/A
1 of 3
FSC 5920
DISTRIBUTION STATEMENT A. Approved for public release; distribution is unlimited.