
INCH-POUND
MIL-PRF-19207/2J
5 December 2013
SUPERSEDING
MIL-PRF-19207/2H
22 January 2007
PERFORMANCE SPECIFICATION SHEET
FUSEHOLDERS, EXTRACTOR POST TYPE,
BLOWN FUSE INDICATING, TYPES FHL11U AND FHL11G
This specification is approved for use by all Departments
and Agencies of the Department of Defense
The requirements for acquiring the product described herein
shall consist of this specification and MIL-PRF-19207.
Ltr
Inches
mm
Ltr
Inches
mm
Min
Max
Min
Max
Min
Max
Min
Max
A
1.070 REF
27.18 REF
H
.969
.979
24.61
24.87
B
1.200 REF
304.80 REF
J
.151
.161
3.84
4.09
C
.055
.065
1.40
1.65
K
.870
.880
22.10
22.35
D
.830 REF
21.08 REF
L
.432
.442
10.97
11.23
E
3.750
4.000
95.25
101.60
M
.370
.380
9.40
9.65
F
.870
.880
22.10
22.35
N
.745
.755
18.92
19.18
G
.200
.210
5.08
5.33
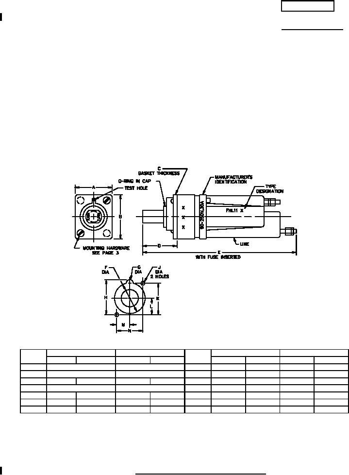
NOTES:
1. Dimensions are in inches.
2. Metric equivalents are given for general information only.
3. Unless otherwise specified, tolerances are ± 0.02 (0.51 mm) for two place decimals and ±0.005 (0.13mm) for
three-place decimals.
FIGURE 1. Type FHL11U and type FHL11G fuseholders.
AMSC N/A
FSC 5920
For Parts Inquires call Parts Hangar, Inc (727) 493-0744
© Copyright 2015 Integrated Publishing, Inc.
A Service Disabled Veteran Owned Small Business