
MIL-DTL-24646/10B
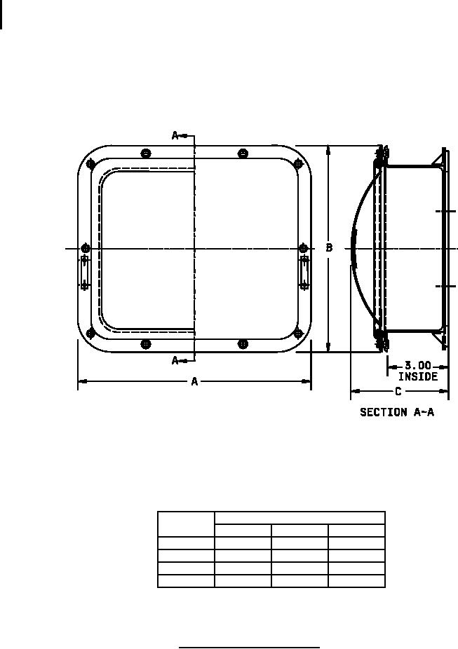
Dimensions (ref)
Symbol
no.
A
B
C
560.1
16.38
15.38
5.62
561.1
20.38
15.38
5.62
562.1
27.38
15.38
5.62
563.1
16.38
15.38
5.62
FIGURE 2. Enclosure, overall dimensions. Item No. 05, 06, 07
(Symbols 560.1, 561.1, 562.1, and 563.1)
2
For Parts Inquires call Parts Hangar, Inc (727) 493-0744
© Copyright 2015 Integrated Publishing, Inc.
A Service Disabled Veteran Owned Small Business