
MIL-DTL-24646/7B
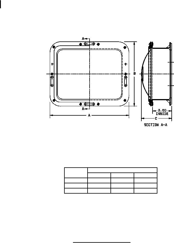
Symbol
Dimension (ref.)
no.
A
B
C
635.1
16.38
13.38
5.62
654.1
19.38
13.38
5.62
653.1
27.38
15.38
5.62
FIGURE 2. Enclosure, overall dimensions. Item No. 04, 05, 06
(Symbols 635.1, 654.1, and 653.1)
2
For Parts Inquires call Parts Hangar, Inc (727) 493-0744
© Copyright 2015 Integrated Publishing, Inc.
A Service Disabled Veteran Owned Small Business