
MIL-DTL-24646/7B
A, Symbols 635.1, and 654.1.
B. Symbol 653.1
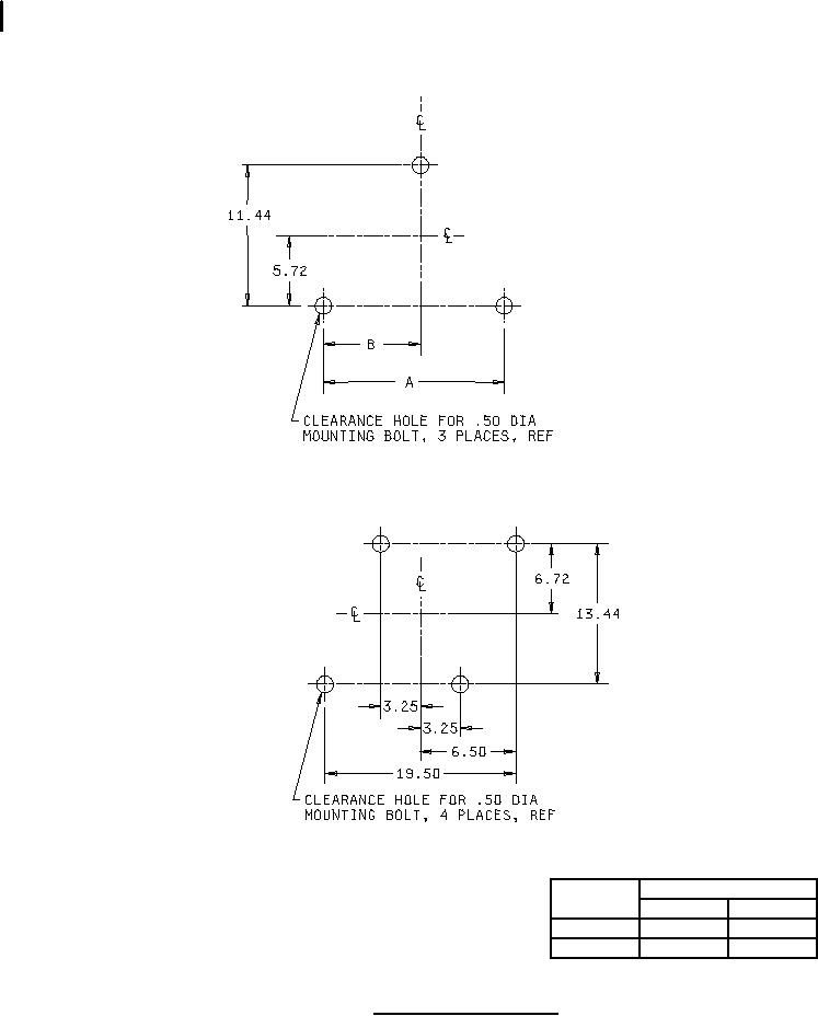
DIMENSIONS
SYMBOL
NO
A
B
635.1
9.25
4.62
654.1
11.75
5.88
FIGURE 3. Mounting dimensions, ref.
3
For Parts Inquires call Parts Hangar, Inc (727) 493-0744
© Copyright 2015 Integrated Publishing, Inc.
A Service Disabled Veteran Owned Small Business