
INCH-POUND
MIL-DTL-83413/10C
19 May 2010
SUPERSEDING
MIL-DTL-83413/10B
31 March 2005
DETAIL SPECIFICATION SHEET
CONNECTORS AND ASSEMBLIES, ELECTRICAL, AIRCRAFT
GROUNDING: JUMPER CABLE ASSEMBLY, AIRCRAFT TO
FUEL NOZZLE, DISCHARGER, ELECTROSTATIC
This specification is approved for use by all Departments and Agencies of the Department of Defense.
The requirements for acquiring the product described herein shall consist of this specification sheet and
MIL-DTL-83413.
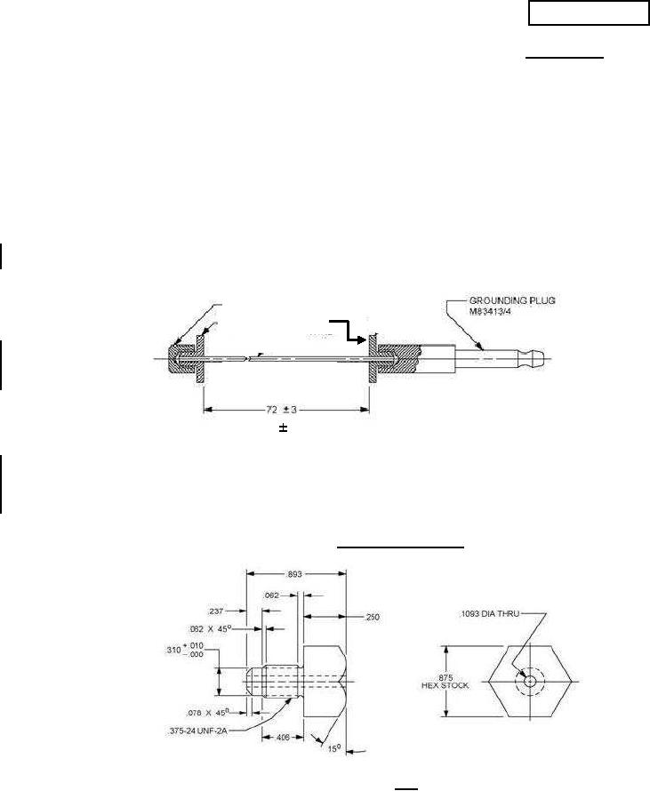
STUD (SEE FIGURE 3)
CAP (SEE FIGURE 2)
GROUNDING WIRE
(1905
76.2 )
NOTES:
1. Dimensions are in inches.
2. Metric equivalents are given for general information only.
3. Unless otherwise specified, tolerance is ± .016 ( 0.041 mm).
4. The cap on this assembly is not used on plug PIN M83413/4-1.
FIGURE 1. Jumper cable assembly.
FIGURE 2. Cap.
AMSC N/A
FSC 5920
For Parts Inquires call Parts Hangar, Inc (727) 493-0744
© Copyright 2015 Integrated Publishing, Inc.
A Service Disabled Veteran Owned Small Business